T ON TIMER INTRODUCTION PLC PROGRAM WITH EXAMPLE PROGRAM

PLC timers are instructions that provide the same functions as on-delay and off-delay mechanical and electronic timing relays. A PLC timer provides a preset delay to the control actions.

In general, there are three types of PLC timer delays, ON-delay timer, OFF-delay timer and retentive timer on.

The terms represented in the timer block in the PLC are a Preset value which means the delay period of the timer, an Accumulated value which is the current delay of the timer.

A timer begins the counting on time-based intervals and continues until the accumulated value equals the preset value. When the accumulated value equals the preset time the output will be energized. Then the timer sets the output.

TON timer or ON delay timer

An ON delay timer is used where we need a time delay before the time delay before an instruction becomes true.


TON TIMER IN SOMACHINE PLC SOFTWARE IN SCHNEIDER 



    HELLO EVERY ONE TODAY WE ARE LISTENING HOW TON  FUNCTION TIMER WORK AND HOW DO WE USE IN PLC PROGRAM.



schneider plc most and popular plc using an industrial. schneider plc software names are 

 1) twido suite

2)  twido soft

3) so machine 

4) unity pro xl



so mahine is very easiest software i ever seen before. the user interface is very easy.

i wrote the plc program shown here




this i had write the program i will explain each rung one by one 

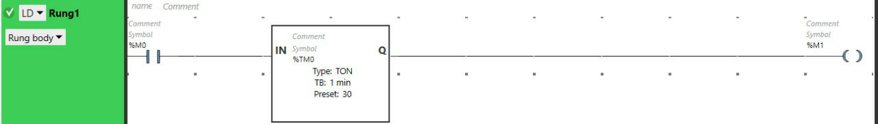
RUNG 1
 

now i would explain first rung 



    first element is on off push button and memory bit m0 for holding point holding purpose 


i0.0 - on push putton

i0.1- off push button 

m0- memory bit

 the operation is when i pushing the on pb the bit m0 is energizing and i release the on pb mo still energies



                                                                  RUNG2


   


 


this rung when m0 is energies  TON timer active m1 same for m0

%tmo timer the 

    

     timer details 

      ton-timer

       preset -30sec

    time base-sec

                                                                RUNG 3


this operation i when the pump is run if the timer preset and accumulator values are same .the pump is run otherwise is not working



                                                                                    RUNG 4





         this rung is consist of the timer accumulator value and preset values are not equal pump2 is  run
Timer number: The timer file name
Time base: which is shown in seconds,
Preset value: Numeric valve set as the delay required to the timer.
Accumalated value: The values are counting is displayed from zero. Value becomes zero whenever the timer is reset
Powered by Blogger.